Description
GILMAR presents this minimalist house of 410 m² built in 2005 on a large plot of 3.400 m² with garden, swimming pool, orchard and access and parking area.
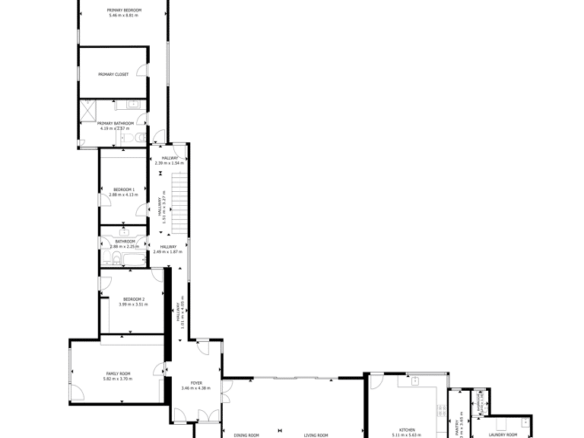
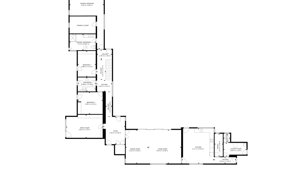
All the rooms have access to the outside, large windows that give it all its luminosity. The house is on two floors, a lower floor in the shape of an L, with high ceilings of more than 3 metres so that the feeling of spaciousness is much greater and a flat on the upper floor with two terraces.
Large porch with swimming pool-solarium, which presides over the garden areas and direct entrance to the spacious living-dining room and from there to the large fully equipped kitchen-diner with high-end appliances and a service area with large pantry, laundry room and drying porch.
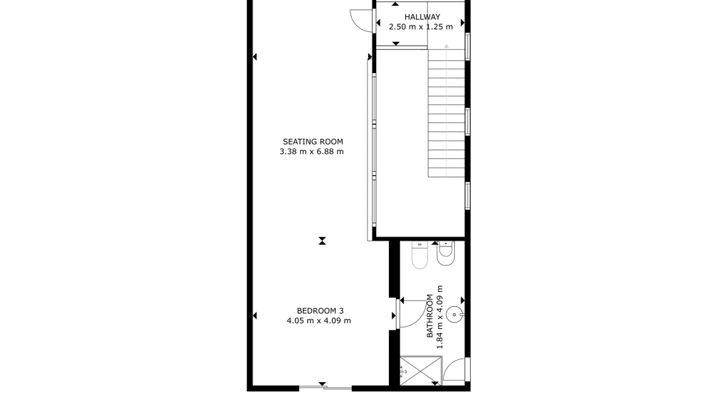
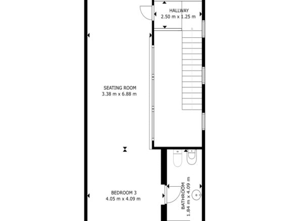
The house has a total of five bedrooms, three bathrooms (with Villeroy Bosh sanitary ware and taps) and a guest toilet at the entrance. One of the bedrooms is used as an office and three others are located in the same wing as spacious bedrooms: the master bedroom with dressing room and private bathroom, two other bedrooms with fitted wardrobes.
Finally, there is a flat on the first floor of 70 m², with private bathroom and access to two terraces.3.400 m² plot has different environments: lawn area, area with fruit trees (orange trees, lemon trees, almond trees, apple trees, Japanese plum trees) and orchard.
The house has centralised air conditioning and heating system throughout the house and also has solar panels for hot water and water from the communal well of the urbanisation.
It enjoys top-of-the-range qualities, such as the high quality 14-millimetre iroko wood flooring throughout the entire floor of the house, to give continuity to all the spaces. In addition, it has top quality Tecnal brand carpentry, sliding doors to connect the spaces and horizontal windows that we find in the passage areas with tilt and turn windows.
It is located in the municipality of Sanlúcar la Mayor, very close to several of the best international schools and 20 minutes from Seville capital.
Details
Additional details
-
Heating: Eléctrica
-
Wardrobes:
-
Air conditioning: Central
-
Orientation: Sur
-
Brightness:
-
Consierge:
-
Kitchen: Independiente
-
Deposit:
-
Garden: Sí
-
Swimming pool: Sí
-
Tennis:
-
Padel:
-
Terrace:
-
Alarm: Sí
-
Lift:
-
Garage:
-
Status:
Address
-
City: SANLÚCAR LA MAYOR
-
State/county: Spain
-
Zip/Postal Code: 41800
-
Area: Sanlúcar la Mayor
-
Country: Spain
Mortgage Calculator
-
Down Payment
-
Loan Amount
-
Monthly Mortgage Payment
-
Property Tax
-
Home Insurance
-
PMI
-
Monthly HOA Fees
Schedule a Tour
What's Nearby?
Contact Information
Similar Listings
Villa in Chiclana de la Frontera
- $860,000
Townhouse in Arroyo Vaquero
- $3,450,000
Villa in La Quinta
- $6,450,000
Villa in La Merced (Marbella)
- $4,500,000
- IBI-ES-Adm




































