Description
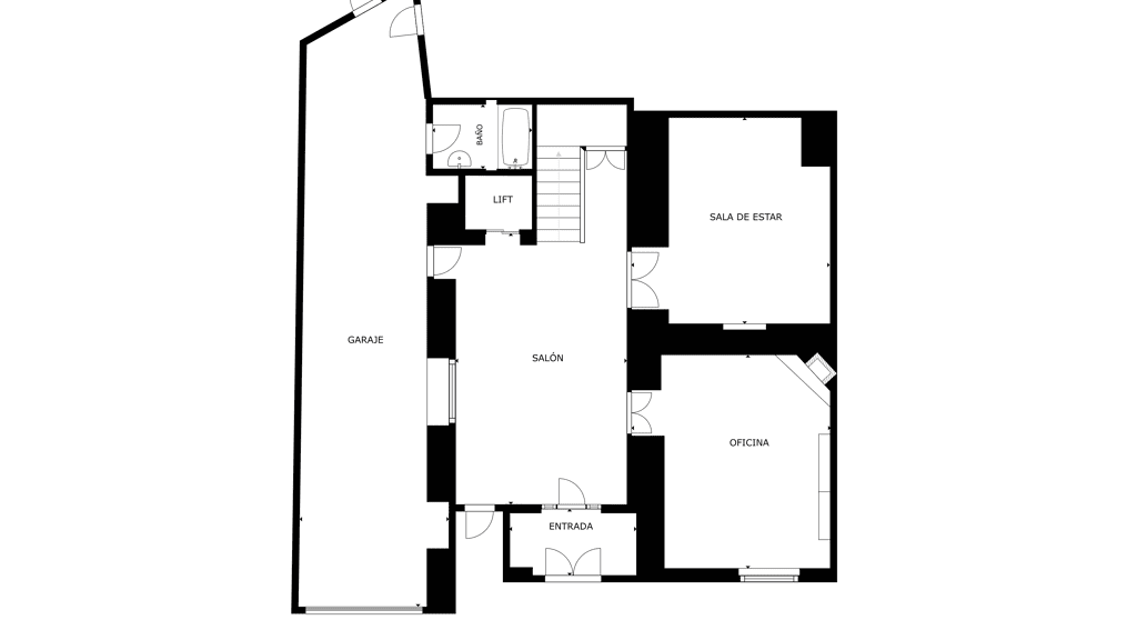
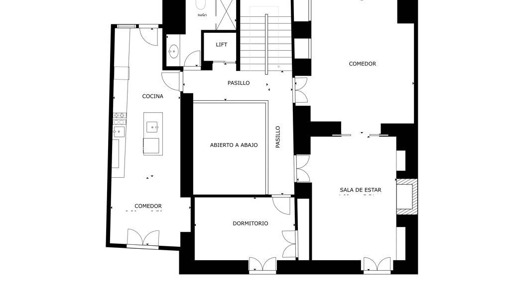
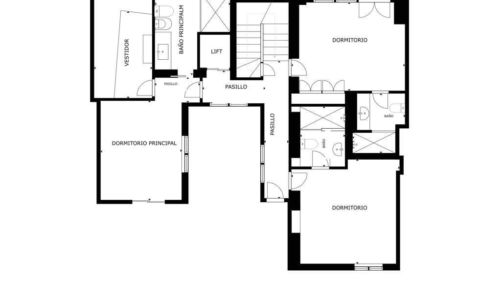
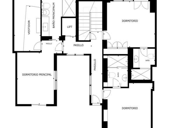
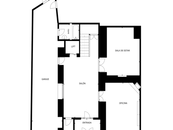
GILMAR presents this large house completely refurbished, located in the heart of the centre of Seville, close to the emblematic Plaza del Museo. With a constructed area of 422 m², this property is distributed over three floors and a solarium. It has six spacious bedrooms and five bathrooms, making it an ideal option for large families and investors alike.
An impressive central courtyard, which not only brings in plenty of natural light, but also becomes the heart of the property, creating an elegant and welcoming atmosphere.
The design of this property reflects meticulous care and exquisite taste throughout. High ceilings with wooden beams, high quality carpentry, underfloor heating, solar panels and air conditioning ensure optimum comfort and outstanding energy efficiency. In addition, there is a lift for easy access between floors, and two parking spaces, an invaluable feature in such a central location.
The west orientation of the property ensures optimal natural light throughout the day, creating bright and welcoming spaces.
Details
Additional details
-
Heating: Suelo Radiante
-
Wardrobes:
-
Air conditioning: Frío / Calor
-
Orientation: Oeste
-
Brightness:
-
Consierge:
-
Kitchen: Independiente
-
Deposit:
-
Garden:
-
Swimming pool:
-
Tennis:
-
Padel:
-
Terrace:
-
Alarm:
-
Lift:
-
Garage: 2
-
Status:
Address
-
City: SEVILLA
-
State/county: Spain
-
Zip/Postal Code: 41002
-
Area: Centro Sevilla
-
Country: Spain
Mortgage Calculator
-
Down Payment
-
Loan Amount
-
Monthly Mortgage Payment
Schedule a Tour
Contact Information
Similar Listings
Villa in Benahavís
- $7,995,000
Villa in Estepona Pueblo
- $1,490,000
Villa in Benahavís
- $4,000,000
Villa in Majadahonda
- $1,875,000
- IBI-ES-Adm



































