Description
GILMAR presenta ático de lujo en pleno Chamberí.
Bienvenido a tu propio oasis de lujo en el corazón de Chamberí. Este ático reformado con diseño exquisito te ofrece una experiencia de vida única, fusionando elegancia contemporánea con comodidades de primer nivel. Finca clásica, de 1913.
En el corazón de Trafalgar, uno de los barrios más vibrantes y cotizados de Chamberí, se levanta esta auténtica joya: un ático único, situado en la tranquila y recién remodelada zona triangular entre Quevedo, Bilbao y San Bernardo.
Al entrar, serás recibido por una sensación de amplitud y luminosidad, gracias a los cuidadosamente seleccionados acabados y la abundante luz natural que inunda cada rincón.
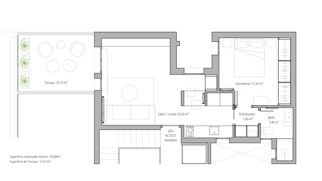
La pieza central de esta residencia es su espacioso salón comedor con salida directa a la terraza. Aquí, podrás disfrutar de cenas íntimas o recibir a tus invitados en un ambiente acogedor. La cocina (semi integrada con posibilidad de independizar), de diseño espectacular, está equipada con los últimos electrodomésticos de alta gama.
Habitación independiente con alta capacidad de almacenaje. 5 hojas de armario de suelo a techo
Baño completo reformado con las mejores calidades y dos ventanas que lo inundan de luz.
Sin embargo, la verdadera joya de esta propiedad es su magnífica terraza, desde donde podrás contemplar las vistas únicas. Ya sea disfrutando de un café por la mañana o brindando al atardecer, esta terraza se convertirá en tu refugio al aire libre.
La vivienda, una quinta planta ubicada en una finca clásica con ascensor, destaca por una reforma integral de altísimas calidades, pensada hasta el último detalle para ofrecer el máximo confort,
La cocina totalmente equipada, con posibilidad de independizarla, dispone de una mesa alta llena de luz. Dos zonas de cocina completas.
Dispone de zona Laundry independiente. armario gabanero y de ropa blanca,
Este ático tiene en total siete puertas/ventanas, que permiten ventilación cruzada y luz todo el dia. Se ha puesto especial cuidado en el aislamiento integral en suelos, techos y paredes.
Un ático que combina el encanto de la arquitectura clásica madrileña con la comodidad y diseño de un hogar contemporáneo.
Ideal para quienes buscan vivir en una de las mejores zonas de Madrid, rodeados de vida de barrio, calles peatonales, cafés, mercados y todos los servicios a pie de calle.
Para entrar a vivir, con electrodomésticos, muebles y todo lo que necesites.
Details
Additional details
-
Heating: Individual Gas Natural
-
Wardrobes:
-
Air conditioning: Frío / Calor
-
Orientation:
-
Brightness:
-
Consierge: Automático
-
Kitchen:
-
Deposit: Sí
-
Garden:
-
Swimming pool:
-
Tennis:
-
Padel:
-
Terrace: 11,00
-
Alarm:
-
Lift: Sí
-
Garage:
-
Status: Estrenar
Address
-
City: MADRID
-
State/county: Spain
-
Zip/Postal Code: 28010
-
Area: Trafalgar
-
Country: Spain
Mortgage Calculator
-
Down Payment
-
Loan Amount
-
Monthly Mortgage Payment
-
Property Tax
-
Home Insurance
-
PMI
-
Monthly HOA Fees
Schedule a Tour
What's Nearby?
Contact Information
Similar Listings
Apartment in Arroyo Enmedio
- $510,000
Apartment in Jerónimos
- $2,260,000
Ground floor apartment in Nervión
- $225,000
Apartment in Torremolinos
- $297,000
- IBI-ES-Adm








