Description
Gilmar Real Estate sells this exclusive penthouse in the neighbourhood of El Limonar – Elegance, Light and Mediterranean Style.
In the heart of one of the most emblematic and prestigious neighbourhoods of the Eastern district, El Limonar, stands this property that perfectly combines comfort, style and a privileged location. Situated in its lower part, very close to the coveted Mediterranean beaches and surrounded by the best commercial, educational and leisure offer in the area, this property represents a unique opportunity to live in one of the most desirable enclaves in the city.
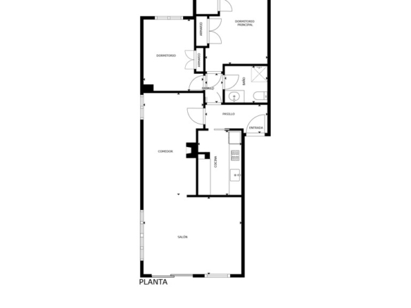
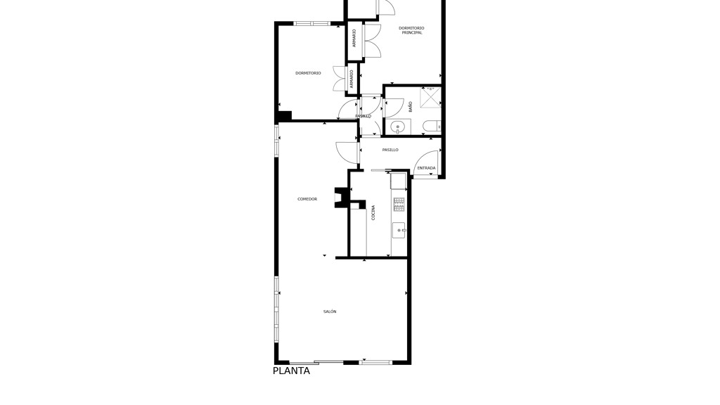
This elegant penthouse, with a constructed surface area of 120 square metres, offers a layout designed to make the most of every space. Upon entering, we are greeted by an entrance hall that leads to a spacious living room with two well-differentiated ambiences – living room and dining room – that integrate harmoniously with a modern and functional semi-open-plan kitchen.
The heart and soul of the property is, without a doubt, its spectacular terrace of approximately 40 square metres, which can be accessed from the living room: an authentic urban oasis with barbecue area and storage room, ideal for unforgettable evenings under the Mediterranean sky, relaxing moments in the sun or family gatherings with unobstructed views.
The property has two double bedrooms, both with fitted wardrobes, and a complete bathroom. The brightness, the sun and the views that can be enjoyed from every corner of this penthouse give the home a positive energy and a constant feeling of wellbeing.
It also includes a convenient parking space in the same building, providing unquestionable added value to this property.
Built in 1989 and in a perfect state of conservation, this property does not require major renovations to start enjoying it from day one. Ideal as a permanent residence or as an exclusive investment, this property offers a distinguished and fully Mediterranean lifestyle.
Discover the privilege of living in El Limonar. A life with essence, light and sea.
GILMAR is a renowned real estate company that has been helping clients find their dream homes since 1983. With extensive experience in the real estate market, GILMAR has earned the trust of its clients thanks to its professionalism and excellence in service. If you are interested in obtaining more information about this property, do not hesitate to contact our team at the Málaga office, located at Calle Cortina del Muelle 13, or call 951 23 33 33. We will be happy to assist you.
Details
Additional details
-
Heating: A/A Frio - Calor
-
Wardrobes:
-
Air conditioning: Frío / Calor
-
Orientation: Este
-
Brightness: Muy Luminoso
-
Consierge: Automático
-
Kitchen: Americana
-
Deposit: Sí
-
Garden:
-
Swimming pool:
-
Tennis:
-
Padel:
-
Terrace: 37,00
-
Alarm:
-
Lift:
-
Garage: 1
-
Status: Buena
Address
-
City: MÁLAGA
-
State/county: Spain
-
Zip/Postal Code: 29016
-
Area: Limonar
-
Country: Spain
Mortgage Calculator
-
Down Payment
-
Loan Amount
-
Monthly Mortgage Payment
-
Property Tax
-
Home Insurance
-
PMI
-
Monthly HOA Fees
Schedule a Tour
What's Nearby?
Contact Information
Similar Listings
- IBI-ES-Adm


































