Description
GILMAR SELLS SPECTACULAR REFURBISHED DUPLEX IN THE NEIGHBOURHOOD OF LOS JERÓNIMOS NEXT TO THE RETIRO PARK AND PUERTA DE ALCÁLA WITH A SURFACE AREA OF 220 METRES. This property is distributed over two floors, offering a modern and sophisticated design.
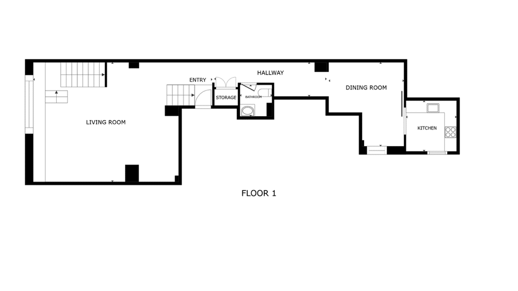
Upon entering the property, we find an entrance hall that leads us to the first floor through a beautiful staircase. On this first floor, we find a wonderful living room with two sitting rooms, with a fireplace that gives it a touch of elegance and a large window that allows a lot of natural light to enter. There is also a guest toilet and a fabulous dining room with a modern and functional kitchen, equipped with high-end appliances and storage capacity. Both rooms are separated by a decorative glass door. On the first floor, we find two double en-suite bedrooms, which offer maximum privacy and comfort.
This duplex is located in a stately building from the 1950s that has been completely refurbished in 2020, offering all the comforts and luxury services. The estate has 24 hour security, spa with heated pool, gym and two saunas. In addition, the property has geothermal heating and integral home automation.
The property is sold with a storage room and two automated parking spaces located in the same property, which guarantees the comfort and security of the residents.
A work of art by the Venezuelan artist Carlos Eduardo Cruz-Díez is on display in the salon, which has a sale value of 400,000 euros in addition to the price of the property.
The neighbourhood of Los Jerónimos is one of the most exclusive and sought-after in Madrid. It is located next to the famous Retiro Park, one of the city’s green lungs, where you can enjoy pleasant strolls, play sports in the open air or simply relax in a peaceful environment. In addition, the neighbourhood has a wide range of services and luxury shops, as well as a wide variety of high quality restaurants and cafés.
In terms of public transport, the nearest metro lines are line 2 (Retiro) and line 4 (Velázquez), which provide easy connections to the rest of the city. In addition, there are also several bus lines that pass close to the location of the property.
GILMAR is a company with more than 35 years of experience in the real estate sector. Since 1983, we have been helping our clients find their dream home by offering a professional and personalised service. Our team of real estate marketing experts is in charge of improving the description of each property, as in this case, to highlight all its features and attractions. If you are interested in obtaining more information about this spectacular duplex in Los Jerónimos, please provide us with the reference 202892 and we will be delighted to assist you.
For more information, you can contact our team at the GILMAR office in the Los Jerónimos neighbourhood, located at Avda. del Mediterráneo, 44. You can also call us on 91 121 84 84 or send us an email to retiro@gilmar.es. We will be delighted to help you in your search for your ideal home.
Details
Additional details
-
Heating: Individual
-
Wardrobes:
-
Air conditioning: Frío / Calor
-
Orientation: Sur
-
Brightness:
-
Consierge: Seguridad 24 H
-
Kitchen: Independiente
-
Deposit: Sí
-
Garden:
-
Swimming pool: Sí
-
Tennis:
-
Padel:
-
Terrace: 0,00
-
Alarm: Sí
-
Lift: Sí
-
Garage: 2
-
Status: Impecable
Address
-
City: MADRID
-
State/county: Spain
-
Zip/Postal Code: 28014
-
Area: Jerónimos
-
Country: Spain
Mortgage Calculator
-
Down Payment
-
Loan Amount
-
Monthly Mortgage Payment
-
Property Tax
-
Home Insurance
-
PMI
-
Monthly HOA Fees
Schedule a Tour
What's Nearby?
Contact Information
Similar Listings
Apartment in Arroyo Enmedio
- $510,000
Apartment in Jerónimos
- $2,260,000
Ground floor apartment in Nervión
- $225,000
Apartment in Torremolinos
- $297,000
- IBI-ES-Adm































